Portfolio / Theater Entrance Doors

Theater Entrance Doors

Type of Project: Drawing & Engineering, Project Management Category:

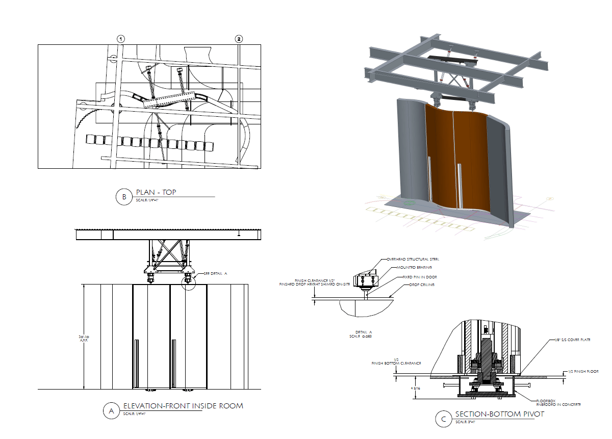
Built for a theater entrance at a Boston University theater, these doors stand over 20′ tall, have curved shape and pivot at center. Using welded steel frames, cnc cut steel plates and finished with fabric wrapped panels these doors operate with the push of a finger. The G.C. for the project was quoted saying “I don’t know who else could have built these doors”

Testimonials

Scroll to Top